Segment Wawer 5 pokoi

lokalizacja: Warszawa, Wiązana

1 133 170,00 PLN

12 327,00 PLN

Opis nieruchomości



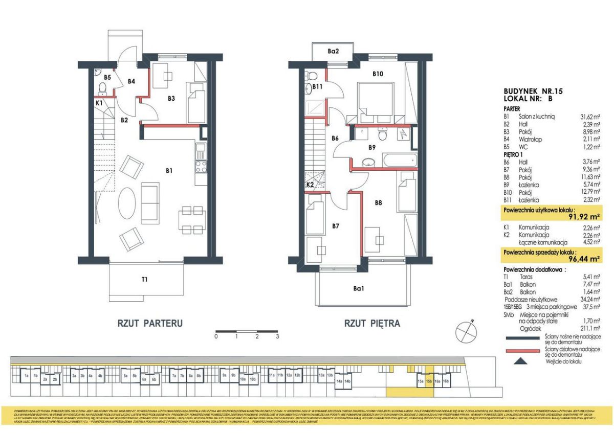
            Deweloper DEVELOPME spółka Wawer Wiązana zaprasza do zakupu 16 budynków mieszkalnych jednorodzinnych dwulokalowych w zabudowie bliźniaczej.

 

Nowoczesne podejście do wykorzystania przestrzeni charakteryzuje ten dom, który posiada miedzy innymi:
2 balkony, taras, ponad 200 metrów ogródka i 3 miejsca postojowe z możliwością zadaszenia.
Dodatkowa przestrzeń na strychu, który posiada wszystkie potrzebne instalacje to dodatkowa korzyść polegająca na zwiększeniu  powierzchni o 34 mkw.

Dom składa się z 5 pokoi w tym 4 sypialni i pokoju dziennego z aneksem kuchennym
2 łazienek i  3 toalet.
Istnieje możliwość zmiany rozmieszczenia ścian działowych na tym etapie.

Proszę zapoznać się ze szczegółami inwestycji zamieszczonymi poniżej.

Dane dodatkowe/szczegóły inwestycji




  • Piec gazowy plus zasobniki min. 120l lub kocioł z zintegrowanym zasobnikiem o min. 80l

  • We wzystkich pomieszczeniach ogrzewanie podłogowe





  • Klimatyzator z funkcją pompy ciepła powietrze/powietrze - jednostka centralna w salonie. W pomieszczeniach o małej powierzchni dodatkowo grzejniki elektryczne np. łazienkach.





  • Rury PP lub PCV. Odprowadzenie ścieków z łazienek i kuchni do sieci kanalizacyjnej miejskiej.





  • Sieć światłowodowa doprowadzona do lokalu mieszkalnego. Instalacja teleinformatyczna rozprowadzona przewodami UTP do gniazd RJ45 zlokalizowanych w mieszkaniu.





  • Instalacja RTV w salonie i sypialni głównej doprowadzona na poddasze do dalszej rozbudowy przez Klienta.





  • Gniazdo Internetowe RJ45 w salonie oraz dodatkowe wejście Internetowe na piętrze.





  • okna - PCV - Trzyszybowe, dwukomorowe.





  • Stropy nad ostatnią kondygnacją i nad piętrem +1 -


Strop żelbetowy z otworem zabudowanym lekką konstrukcją karto- gipsową wraz z wyłazem strychowym.


  • Dach o konstrukcji drewnianej, kryty blachodachówką.





  • Przygotowane przejścia pod instalację pod fotowoltaikę oraz antenę pod instalację RTV.





  • elewacja - tynk cienkowarstwowy, technologia lekko-mokra z izolacją ze styropianu min. gr. 18 cm powyżej cokołu.


opcje dodatkowe:

  1. Żaluzje antywłamaniowe parter

  2. Smarthome

  3. Monitoring

  4. Ladowarka samochodowa - poprzez zmiany lokatorskie za dodatkową opłatą - wymagana zmiana warunków przyłączeniowych, przekroju kabla zasilającego montażu zabezpieczenia w rozdzielnicy TM.

  5. możliwość wylania fundamentu pod   ewentualną wiatę w  dla zabudowy w drugim rzędzie
    Harmonogram Przedsięwzięcia Deweloperskiego zawiera 6 (sześć) etapów realizacji: -----
    a. „Etap 1” - 25% wartości finansowej inwestycji - przewidywany termin ukończenia 20 września 2025 r. - zakup działki, projekt i pozwolenie na budowę, start budowy ; -----
    b. „Etap 2” - 15% wartości finansowej inwestycji - przewidywany termin ukończenia - 15 lutego 2026 r. - Stan surowy zero,
    c. „Etap 3” - 15% wartości finansowej inwestycji - przewidywany termin ukończenia 31
    maja 2026 r. - Stan surowy otwarty bez ścian działowych,
    d. „Etap 4” - 20% wartości finansowej inwestycji - przewidywany termin ukończenia 31 lipca 2026 r. - Stan surowy zamknięty bez drzwi wejściowych i min. 50% pokrycia dachowego,
    e. „Etap 5” - 15% wartości finansowej inwestycji - przewidywany termin ukończenia 30 sierpnia 2026 r. - Elewacje bez cokołu i wyprawek tynkarskich parteru, ścianki
    działowe, instalacje podtynkowe i tynki,
    f. „Etap 6” - 10% wartości finansowej inwestycji - przewidywany termin ukończenia 30
    października 2026 r. - Uzyskanie pozwolenia na użytkowanie.




Kontakt do opiekuna:

Manzil Sp. z o.o.

Magdalena Łucek
Nieprawidłowy adres E-mail
Mapa

Strona korzysta z plików cookie w celu realizacji usług zgodnie z Polityką prywatności. Możesz określić warunki przechowywania lub dostępu do cookie w Twojej przeglądarce.